設計師:馬德燕(鼓樓旗艦店 高級設計師)
戶型詳情:深業濱江公寓135平米 現代簡約風格
案例說明
現代簡約風格主要表現在空間開敞、內外通透,在空間平面設計中追求不受承重墻的限制自由。所以在設計現代簡約的時候,很多時候都會考慮到墻面、地面、頂棚等的協調性。
簡約的設計,它是一種更高層次的創作境界。在考慮其設計的時候,它強調的是一種舒適與實用,比較注重于追求材料、技術、空間的表現深度與精確。所以現代簡約風格的設計師一般都要求具有較高的設計素養與實踐經驗。
優缺點分析
優點:
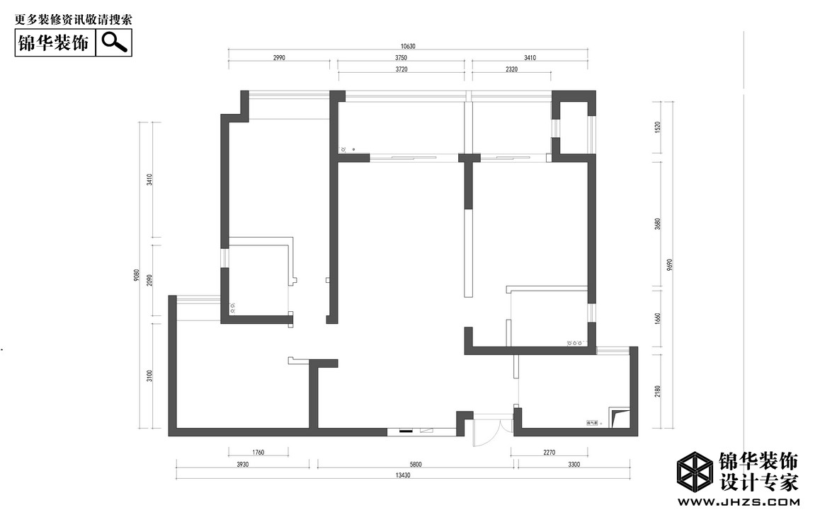
1、房子為三室兩廳一廚兩衛戶型
2、陽臺廚房布局合理,陽臺寬敞,采光和通風性強;
3、主臥朝南,各功能間流線性好,空間類型豐富。
缺點:
1、兩個衛生間空間偏小
2、廚房入口小
原始結構圖↓

平面布置圖↓

效果圖↓

效果圖↓
想了解更多深業濱江公寓戶型資料么?
錦華裝飾準備了深業濱江公寓各戶型全套設計方案、工程量報價、參考效果圖、主材搭配方案.歡迎您和網絡客服取得聯系,預約來店面詳細溝通.錦華裝飾,設計專家!.
江蘇家裝示范品牌
代表地區優秀設計聲音
集28年工程管理經驗之大成
省時、省力更省心
| 走進錦華 | 設計團隊 | 作品列表 | 戶型解析 | 裝修百科 |
關注錦華公眾號
|
瀏覽手機官網 |
全國熱線 025 86550815 |
||||||||||
| 新聞列表 | 錦華文化 | 堂杰國際設計 | 1865旗艦店 | 極簡 | 中古 | 秦淮金茂府 | 常見問題 | ||||||||||
| 全國分公司 | 錦華招聘 | 河西旗艦店 | 鼓北旗艦店 | 法式 | |||||||||||||
| 錦華簡介 | 聯系我們 | 城東旗艦店 | 江寧旗艦店 | 歐式古典 | 北歐 | 中交錦方 | |||||||||||
| 資質榮譽 | 法律聲明 | 江北旗艦店 | 江浦店 | 美式田園 | 新古典 | 溧水玖宸府 | |||||||||||