設計師:董婷婷(鼓北旗艦店 主案設計師)
戶型詳情:江紫宸廣場92平米 現代輕奢風格
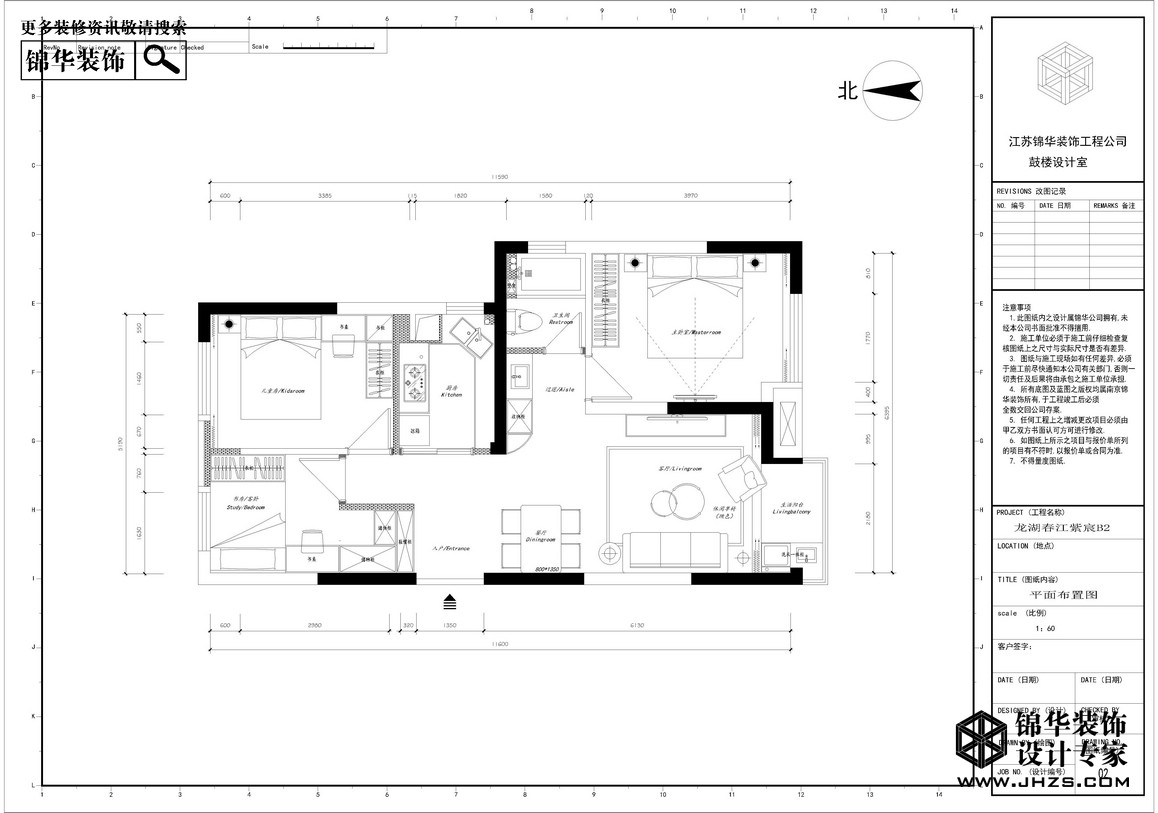
案例說明
本案戶型經典三房,一廚一衛,客餐廳空間獨立,功能齊全。在不影響正常功能的條件下,盡量把空間設計規整。飄窗、外機位拆除,增加空間感。輕裝修重裝飾,通過軟裝的搭配彌補空間設計上的不足。
優缺點分析
優點:
1、空間動靜分離,私密性非常好。
2、飄窗可拆,可增大空間面積。
缺點:
1、臥室空間過小,顯得擁擠。
2、廚房、陽臺較小,影響使用。
原始結構圖↓
平面布置圖↓
效果圖↓
效果圖↓
效果圖↓
想了解更多江紫宸廣場戶型資料么?
錦華裝飾準備了江紫宸廣場各戶型全套設計方案、工程量報價、參考效果圖、主材搭配方案.歡迎您和網絡客服取得聯系,預約來店面詳細溝通.錦華裝飾,設計專家!.
江蘇家裝示范品牌
代表地區優秀設計聲音
集28年工程管理經驗之大成
省時、省力更省心
| 走進錦華 | 設計團隊 | 作品列表 | 戶型解析 | 裝修百科 |
關注錦華公眾號
|
瀏覽手機官網 |
全國熱線 025 86550815 |
||||||||||
| 新聞列表 | 錦華文化 | 堂杰國際設計 | 1865旗艦店 | 極簡 | 中古 | 秦淮金茂府 | 常見問題 | ||||||||||
| 全國分公司 | 錦華招聘 | 河西旗艦店 | 鼓北旗艦店 | 法式 | |||||||||||||
| 錦華簡介 | 聯系我們 | 城東旗艦店 | 江寧旗艦店 | 歐式古典 | 北歐 | 中交錦方 | |||||||||||
| 資質榮譽 | 法律聲明 | 江北旗艦店 | 江浦店 | 美式田園 | 新古典 | 溧水玖宸府 | |||||||||||