永恒的貴族精神
風格:歐式
這個樓盤位于秦淮區,客戶喜歡奢華歐式的裝修風格。向往貴族般的生活,其中軟裝上有新古典的味道,餐廳局部背景帶點美式的感覺,總體色彩明亮淡雅,與客戶的喜好相符合。背景造型上極其講究,給人的感覺端莊典雅、高貴華麗,具有濃厚的文化氣息。在家具選配上,采用寬大精美的家具,配以精致的雕刻,整體營造出一種華麗、高貴、溫馨的感覺。
在每一個午后清淺的時光,習慣在午后懶懶地靠在沙發上,看著湛藍的天,悠悠的白云,我知道那是你我的追逐。這是我第一次與客戶電話溝通,意識到客戶想要的慢節奏的生活狀態。第一次的電話溝通,彼此建立了信任,在后期設計中客戶一直是欣賞并支持設計師的工作,作品得以完美呈現對客戶設計師來說都是欣喜的!
客戶很年輕,喜歡優雅大氣的風格,喜歡偏素色的色調。同時也喜歡一些簡約的設計。與客戶溝通多次,我們確定了簡歐的裝修風格。傳統的歐式風格追求莊嚴大氣,氣勢磅礴在人們的印象中是金碧輝煌,也正是因為這一點,很多客戶將歐式風格拒之門外。其實不同的設計師會設計出不同的視覺效果,也許并不是那么的耀眼。而我的這套作品中設計師在設計上打破了傳統概念化的歐式風格,以暖色素色為色調打造出一個低調而又大氣時尚的歐式風格家具設計。
切身體會,我獨自靜坐,越來越適應慢下來的時光,生活節奏變得不一樣,享受著,品味著,將漫過思緒的話語,悄悄落筆,淺淺說起,恰似一抹暖陽撞進了心上,這不正是我所想要的嗎?面對自己的作品。暗想;從明天起做一個幸福的人,做一位想有所得的人。堅持一種悠然的姿態,青春暖花開,看紅塵內外,戲里戲外。
真誠感恩,感謝客戶對設計的全力配合與支持,給予設計師充足的空間盡情施展設計,盡善盡美完成!






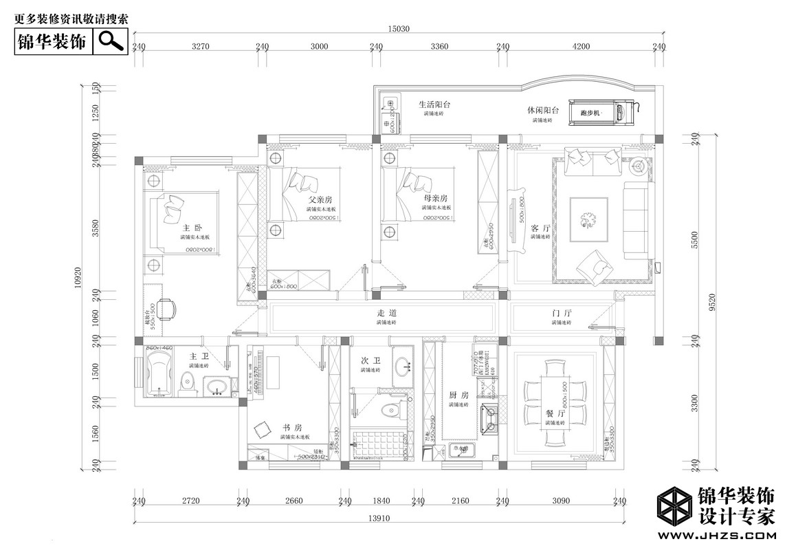
想了解更多大光路戶型資料么?
錦華裝飾準備了大光路各戶型全套設計方案、工程量報價、參考效果圖、主材搭配方案.歡迎您和網絡客服取得聯系,預約來店面詳細溝通.錦華裝飾,設計專家!.
江蘇家裝示范品牌
代表地區優秀設計聲音
集25年工程管理經驗之大成
省時、省力更省心
| 走進錦華 | 設計團隊 | 作品列表 | 戶型解析 | 裝修百科 |
關注錦華公眾號
|
瀏覽手機官網 |
全國熱線 025 86550815 |
||||||||||
| 新聞列表 | 錦華文化 | 堂杰國際設計 | 1865旗艦店 | 極簡 | 中古 | 秦淮金茂府 | 常見問題 | ||||||||||
| 全國分公司 | 錦華招聘 | 河西旗艦店 | 鼓北旗艦店 | 法式 | |||||||||||||
| 錦華簡介 | 聯系我們 | 城東旗艦店 | 江寧旗艦店 | 歐式古典 | 北歐 | 中交錦方 | |||||||||||
| 資質榮譽 | 法律聲明 | 江北旗艦店 | 江浦店 | 美式田園 | 新古典 | 溧水玖宸府 | |||||||||||