居住成員:3人(夫妻+小孩)
房屋位置:明發香山郡
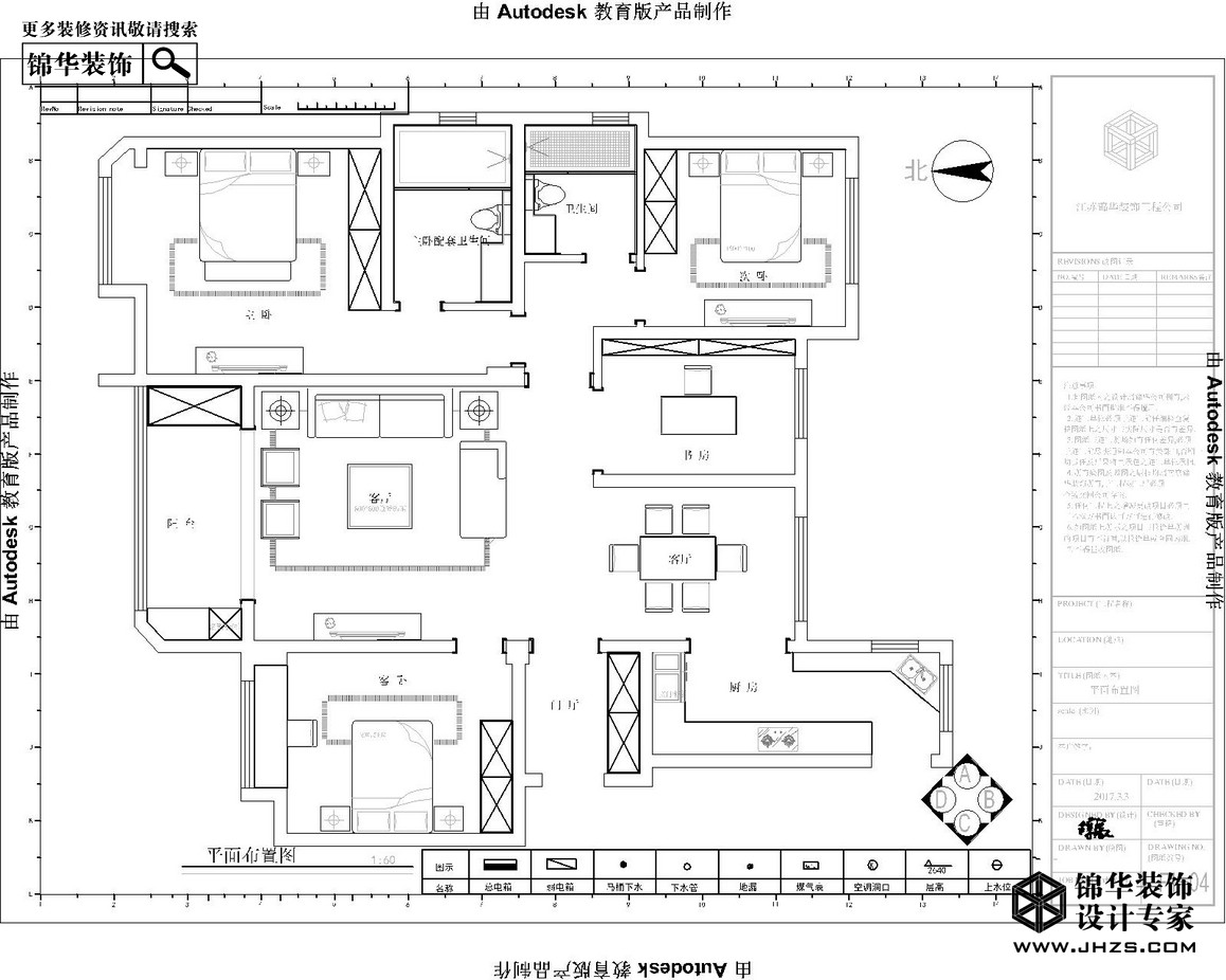
房屋狀況:毛胚房 四室兩廳兩衛
設計風格:新中式
房屋平數:138平方
主要建材:墻紙、硬包、定制木門、進口強化地板、瓷磚
保留原有空間的優點;豐富空間的功能型;規避不完整,讓客廳更加完整。
新中式風格,也被稱作現代中式風格。
新中式風格設計,既是中國傳統風格文化與現代時尚元素的融合與碰撞,又是在中國當代文化理解基礎上的現代設計
本案例主要采用硬朗簡潔的直線條,增加空間具有層次感。
運用于中式家具古典、質樸的內涵,但有注重現代人追求的時尚感、實用性;來做整體設計
現代人的學習工作都講求快捷、高效,于是在生活娛樂時就希望把腳步放慢,回歸到輕快放松的環境中。所有越來越多的人親睞新中式風格。






想了解更多明發香山郡戶型資料么?
錦華裝飾準備了明發香山郡各戶型全套設計方案、工程量報價、參考效果圖、主材搭配方案.歡迎您和網絡客服取得聯系,預約來店面詳細溝通.錦華裝飾,設計專家!.
江蘇家裝示范品牌
代表地區優秀設計聲音
集25年工程管理經驗之大成
省時、省力更省心
| 走進錦華 | 設計團隊 | 作品列表 | 戶型解析 | 裝修百科 |
關注錦華公眾號
|
瀏覽手機官網 |
全國熱線 025 86550815 |
||||||||||
| 新聞列表 | 錦華文化 | 堂杰國際設計 | 1865旗艦店 | 極簡 | 中古 | 秦淮金茂府 | 常見問題 | ||||||||||
| 全國分公司 | 錦華招聘 | 河西旗艦店 | 鼓北旗艦店 | 法式 | |||||||||||||
| 錦華簡介 | 聯系我們 | 城東旗艦店 | 江寧旗艦店 | 歐式古典 | 北歐 | 中交錦方 | |||||||||||
| 資質榮譽 | 法律聲明 | 江北旗艦店 | 江浦店 | 美式田園 | 新古典 | 溧水玖宸府 | |||||||||||